click to enable zoom
loading...
We didn't find any results
open map
Θέα Roadmap Satellite Hybrid Terrain Η τοποθεσία μου Πλήρης οθόνη
Transport
Supermarkets
Schools
Restaurants
Pharmacies
Hospitals
Your search results

Υπό Κατασκευή Ανεξάρτητη Κυκλαδίτικη Κατοικία με Ιδιωτική Πισίνα και Θέα Θάλασσα | Αγκαιριά, Πάρος

€ 810,000
Κωδικός ακινήτου: # 11162S1
Αγκαιριά, ,
90

  • Updated On:
  • 27 Απριλίου, 2026
  • 3 Υπνοδωμάτια
  • 3 Bathrooms
  • 162 m2
  • Year Built: 2026

Περιγραφή

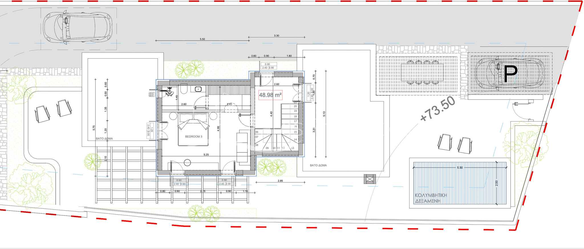
Στο γραφικό χωριό της Αγκαιριάς, μόλις λίγα λεπτά από την Αλυκή και τις όμορφες παραλίες της νότιας Πάρου, αυτή η νεόδμητη ανεξάρτητη μεζονέτα αποτελεί μέρος μιας αποκλειστικής ανάπτυξης μόλις τεσσάρων ανεξάρτητων κατοικιών, σχεδιασμένων για όσους αναζητούν ιδιωτικότητα, άνεση και αυθεντική νησιωτική διαβίωση.

Τοποθετημένη σε ιδιόκτητο οικόπεδο 318τ.μ. και αναπτυσσόμενη σε δύο επίπεδα, με συνολική επιφάνεια 162τ.μ., η Βίλα Σελίνη θα διαθέτει τρία ευρύχωρα master υπνοδωμάτια με en-suite μπάνια, συμπεριλαμβανομένου ενός υπνοδωματίου στον όροφο που ενισχύει την ιδιωτικότητα και την απρόσκοπτη θέα, ένα WC επισκεπτών, καθώς και έναν φωτεινό ενιαίο χώρο κουζίνας, τραπεζαρίας και καθιστικού με άμεση σύνδεση προς τους εξωτερικούς χώρους διαβίωσης.

Ο όμορφα διαμορφωμένος κήπος θα περιλαμβάνει ιδιωτική πισίνα και καθιστικά εξωτερικού χώρου, απολαμβάνοντας πανέμορφη θέα του Κυκλαδίτικου τοπίου.

Διαθέσιμη σήμερα προς προπώληση από τα σχέδια, η κατοικία αποτελεί μία εξαιρετική ευκαιρία απόκτησης ενός σύγχρονου νεόδμητου σπιτιού σε ήσυχη αλλά εύκολα προσβάσιμη τοποθεσία, ιδανικού τόσο για ιδιωτική χρήση όσο και για επενδυτική αξιοποίηση.

Η ολοκλήρωση και παράδοση της κατοικίας εκτιμάται εντός 24 μηνών από την επίσημη επιβεβαίωση ενδιαφέροντος του αγοραστή.

Μία εξαιρετική συνύπαρξη μοντέρνου σχεδιασμού, θέας στη θάλασσα και άμεσης πρόσβασης σε μερικά από τα ομορφότερα παραθαλάσσια σημεία της Πάρου.

Address: Αγκαιριά
T.K.: 84400
Country: Ελλάδα
Open In Google Maps
Κωδικός ακινήτου: 63395
Price: € 810,000
Property Size: 162 m2
Οικόπεδο: 318 m2
Υπνοδωμάτια: 3
Bathrooms: 3
Κωδικός ακινήτου: 11162S1
Χρονολογία: 2026
Απόσταση από θάλασσα (χλμ): 1.6
Απόσταση από λιμάνι (χλμ): 13.5
Απόσταση από αεροδρόμιο (χλμ): 5
Πιστοποιητικό Ενεργειακής Απόδοσης (ΠΕΑ): Εξαιρείται
Other Features
A/C
Θέα θάλλασα
Κήπος
Με πισίνα
Νεόδμητο
Πάρκινγκ

Other Agents

Similar Listings

Πώληση

2 Σύγχρονες Βίλες με Ιδιωτικές Αυλές & ...

€ 1,200,000 Έκαστη
Στο μαγευτικό νοτιοδυτικό τμήμα της Πάρου, εκεί όπου το ηλιοβασίλεμα χρωματίζει καθημερινά τον ορίζοντα, δημιουργού ...
Στο μαγευτικό νοτιοδυτικό τμήμα της Πάρου, εκεί όπου το ηλιοβασίλεμα χρωματίζει καθημερινά τον ορίζοντα, δημιουργού ...
33 137 m2#11167Περισσότερα
Πώληση

Σύγχρονη Ισόγεια Γωνιακή Κατοικία με Ιδιωτικ...

€ 750,000
Σε μία ήσυχη και ιδιαίτερα περιζήτητη περιοχή του Αγίου Γεωργίου στην Αντίπαρο, μόλις 700 μέτρα από τη θάλασσα, δια ...
Σε μία ήσυχη και ιδιαίτερα περιζήτητη περιοχή του Αγίου Γεωργίου στην Αντίπαρο, μόλις 700 μέτρα από τη θάλασσα, δια ...
22 120 m2#11166Περισσότερα
Πώληση

Υπό Κατασκευή Γωνιακή Κυκλαδίτικη Μεζονέτα μ...

€ 685,000
Σε προνομιακή γωνιακή θέση εντός νεόδμητου οικιστικού συγκροτήματος στο Άσπρο Χωριό, διατίθεται προς πώληση κομψή υ ...
Σε προνομιακή γωνιακή θέση εντός νεόδμητου οικιστικού συγκροτήματος στο Άσπρο Χωριό, διατίθεται προς πώληση κομψή υ ...
32 110 m2#11161V5Περισσότερα
Πώληση

Νεόδμητη Κυκλαδίτικη Μεζονέτα 115 τ.μ. με Ιδ...

€ 660,000
Σε προνομιακή αμφιθεατρική θέση στην ήσυχη οικιστική ζώνη του Άσπρου Χωριού, με ανεμπόδιστη θέα στο απέραντο γαλάζι ...
Σε προνομιακή αμφιθεατρική θέση στην ήσυχη οικιστική ζώνη του Άσπρου Χωριού, με ανεμπόδιστη θέα στο απέραντο γαλάζι ...
32 115 m2#11161V3Περισσότερα

Ρωτήστε μας για το ακίνητο

    Compare Listings

    Compare Listings

    Paros Properties